Announcement

Collapse
No announcement yet.

Trim Parts and fuel cut off safety clip tracings

Collapse
X
 
  • Filter
  • Time
  • Show
Clear All
new posts

  • Trim Parts and fuel cut off safety clip tracings

    I thought it would be easier to just post the tracings of the fuel cut off clip and the parts for the trim indicator for everyone. I had one problem with the scanner, it would only work in PDF format, not a jpg. If someone with the right software to convert them for those whose computers won't open PDF I would appreciate it.
    More later as any questions come up. I'm sure I missed lots of details that will show up as people try to make the parts. To scale the trim parts the long part I traced was exactly 7" long.
    Hank
    Attached Files

  • #2
    Re: Trim Parts and fuel cut off safety clip tracings

    Originally posted by Hank Jarrett View Post
    If someone with the right software to convert them for those whose computers won't open PDF I would appreciate it. To scale the trim parts the long part I traced was exactly 7" long.
    Hank
    Hi Hank, now also in Jpeg. Thank you for sharing
    Attached Files
    Zak Kotze

    BC12-D with Continental 0-200

    Comment


    • #3
      Re: Trim Parts and fuel cut off safety clip tracings

      Thanks Zak. What software do you use? I need to put something back on my machine again.
      Hank

      Comment


      • #4
        Re: Trim Parts and fuel cut off safety clip tracings

        Hi Hank

        I used this website: http://www.convertwebtopdf.com/
        Zak Kotze

        BC12-D with Continental 0-200

        Comment


        • #5
          Re: Trim Parts and fuel cut off safety clip tracings

          Here's the fuel SOV safety guard I recently made for N95598.
          Attached Files
          Terry Bowden, formerly TF # 351
          CERTIFIED AERONAUTICAL PRODUCTS, LLC
          Consultant D.E.R. Powerplant inst'l & Engines
          Vintage D.E.R. Structures, Electrical, & Mechanical Systems
          BC12D, s/n 7898, N95598
          weblog: Barnstmr's Random Aeronautics
          [email protected]

          Comment


          • #6
            Re: Trim Parts and fuel cut off safety clip tracings

            Hank,

            Who was your source for spring steel? Thanks!
            Cheers,
            Marty


            TF #596
            1946 BC-12D N95258
            Former owner of:
            1946 BC-12D/N95275
            1943 L-2B/N3113S

            Comment


            • #7
              Re: Trim Parts and fuel cut off safety clip tracings

              Terry,
              I like your design better than the original! Simple and functional plus it can be made from thicker material that won't cut your fingers.

              Marty,
              I found some scrap metal from a broom hanger but it didn't work as well as some stainless strip from the local hobby shop. When you are grinding the spring steel it is almost impossible to not kill the temper.

              Hank

              Comment


              • #8
                Re: Trim Parts and fuel cut off safety clip tracings

                Can someone make one of these for me?
                Live for today for we know not what tomorrow holds

                Comment


                • #9
                  Re: Trim Parts and fuel cut off safety clip tracings

                  Hank,

                  I was amazed at how narrow your part was, I expected a little more width from looking at the pictures. How did you make the bends?

                  PS Obviously, I don't do a lot of metal parts...
                  Cheers,
                  Marty


                  TF #596
                  1946 BC-12D N95258
                  Former owner of:
                  1946 BC-12D/N95275
                  1943 L-2B/N3113S

                  Comment


                  • #10
                    Re: Trim Parts and fuel cut off safety clip tracings

                    After the hole and external shape is made, I just put the fuel cut off knob base (the part that screws into the panel) through the hole and bent the sides up 90* tight to the sides of the base. Then I put the knob through the hole and between the legs of the clip (spreading them out). I pinched the sides in around the base of the knob (bending the legs outward snug to the knob) and held the base of the legs tight while I bent the ends over the top of the knob. I then took a needle nose pliers and back bent the ends so the knob would slide through it springing it open as the knob passed.
                    It was actually the easiest part of the whole job and different knobs will end up making slightly different shapes to the bends. The big thing to get right is the bend over the top to keep the knob tight to the panel and the back bend so the knob doesn't catch as it passes when you push it back in.
                    Hank

                    Comment


                    • #11
                      Re: Trim Parts and fuel cut off safety clip tracings

                      Thanks, Hank.

                      For those of you scaling up both drawings using a copier....I printed off Hank's plans as-is. I then used a copier at the 103% scale and the plans came out exactly at Hank's scale shown on the fuel clip and 7" for the long part on the trim piece.
                      Cheers,
                      Marty


                      TF #596
                      1946 BC-12D N95258
                      Former owner of:
                      1946 BC-12D/N95275
                      1943 L-2B/N3113S

                      Comment


                      • #12
                        Re: Trim Parts and fuel cut off safety clip tracings

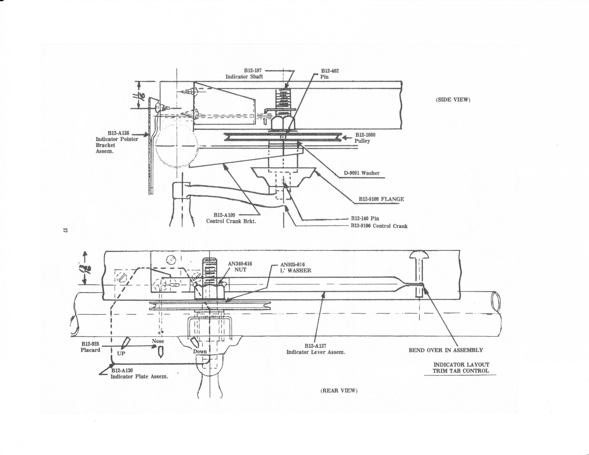
                        Great drawing for trim tab indicator parts. Only part I can't understand, is how the end of the long rod (Part B12-A137) is attached. Is it fixed and the whole rod moves up and down the screw in a bending motion, or does it pivot in some way?. i.e. the end I'm talking about is the one that looks like a small "curved paddle".

                        Comment


                        • #13
                          Re: Trim Parts and fuel cut off safety clip tracings

                          I'm not sure I understand your question. In the attached picture (no idea where the first one came from, but the craftsmanship on the others is very English) the long piece has the bent over tab with the threaded hole over the shaft. The slot in the long piece is for the "cranked" indicator wire. The spoon shaped opposite end goes through a slot in the stringer and that is the pivot point for the long piece. Some planes had the stringers too far apart and a small box was glued to the stringer for the end to pivot on. I also saw one where a piece of wire was brought back from the front and the long piece was wrapped around it as a pivot. Hey, the factory guys made them work and they weren't always the same.
                          When you turn the trim crank, the pulley moves the cable that changes the trim. As it turns the tab on the long piece threads up and down the shaft raising and lowering the slot in the long piece. That causes the cranked wire to twist in the hole. After you assemble the whole mechanism and have the wire through the hole you just center the tab on the threads and bend the wire coming out the front 90* straight down so it sits on the pilot side of the indicator plate.
                          Hank
                          Attached Files

                          Comment


                          • #14
                            Re: Trim Parts and fuel cut off safety clip tracings

                            Here is a drawing i have of the trim indicator maybe it will help
                            Attached Files
                            1940 BLT/BC65 N26658 SER#2000

                            Comment


                            • #15
                              Re: Trim Parts and fuel cut off safety clip tracings

                              Thanks Hank. It was a poorly worded question. Your comments has helped a lot. I'm still a little fuzzy on how the non-nut side attaches to the stringer and how the metal seems to change planes.

                              Comment

                              Working...
                              X